品牌:鑫百泽
规格:20*30mm
标准:国标
型号:制品型 腻子型
起订:100米
供应:5560米
发货:3天内
立即购买
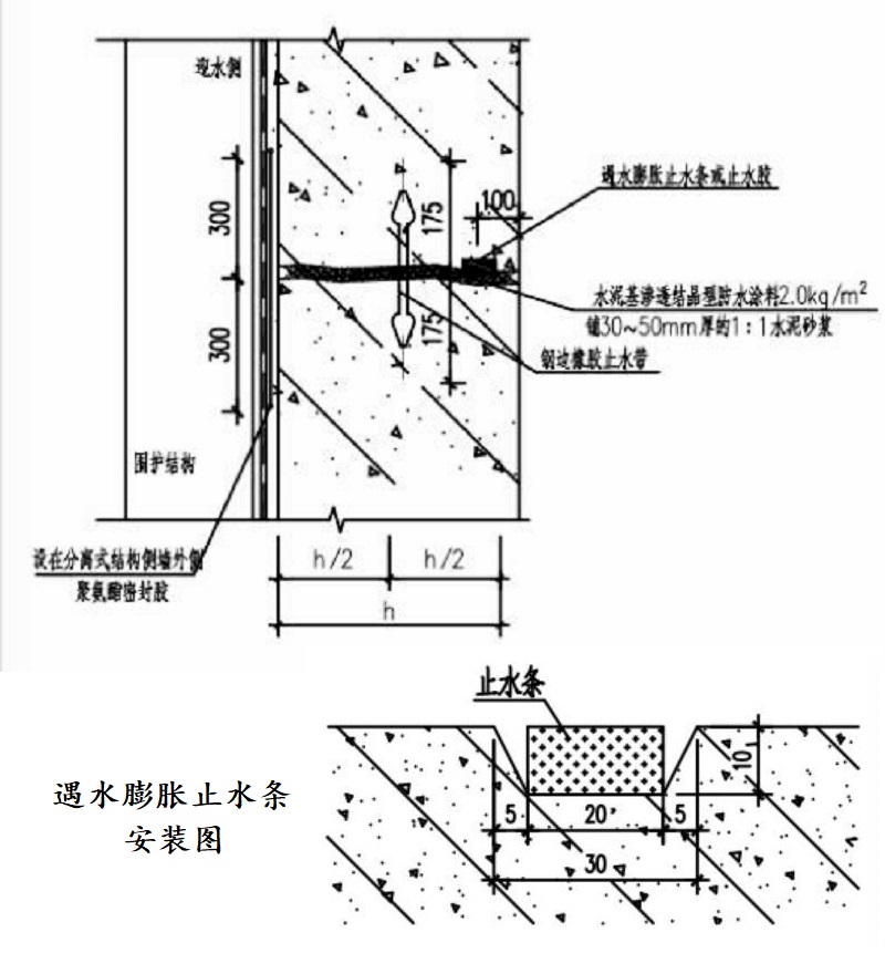
遇水膨胀止水条是什么
遇水膨胀止水条是一种柔性嵌缝止水材料,遇水膨胀止水条是由高分子吸水材料与橡胶混炼而成,具有遇水膨胀且弹性大的特点。它具有一定的弹性和可塑性,遇水膨胀后塑性进一步增,堵塞混凝土缝隙和出现的裂缝,以水止水。

遇水膨胀止水条的作用是什么
遇水膨胀止水条的作用就是可以阻止水分渗漏流动扩散而安装的长条形带状物,遇水膨胀止水条形成阻水屏障,一般用于防水部位的施工缝或后浇带或管道穿墙板处。它已广泛应用于建筑工程、桥梁工程、地下建筑物、水利工程等砌混凝土工程施工缝防止漏的材料,能解决混凝土施工缝和预留缝的渗漏难题,用施工简单、方便。

遇水膨胀止水条的安装位置
在工程中,安装橡胶止水带或者钢边橡胶止水带加一道遇水膨胀止水条,构成结构内部的防水体系,结合结构外侧的防水板形成完整的防水体系。安装遇水膨胀止水条的也是很重要的一步,在安装过程中,需要细心,认真,并注意细节,这样才能够预防墙面渗漏和水患等问题。



